• Phone : +44-7848851058
  • p.shah@psstructuralltd.co.uk

Residential

House Extension Services

Create More Space, Add Value, Stay Compliant

Why House Extensions Matter

Adding a rear or loft extension is one of the most effective ways to enhance your home’s functionality without the hassle of moving. Whether you're expanding for a growing family or improving property value, extensions provide flexibility and long-term benefits.

A professionally designed structure ensures safety, longevity, and full compliance with regulations. It also unlocks smarter use of space through efficient beam placement and load transfer avoiding overengineering while still maintaining strength and stability.

Beyond technical performance, your investment becomes more attractive to buyers, lenders, and insurers thanks to documented structural support and certification.



What We Do

At PS Structural Ltd, we provide tailored structural engineering services for house extensions, including:

  • Calculations for load-bearing wall removals
  • Chimney breast support design
  • Loft conversions with dormer structuring
  • Rear and side extension foundation design
  • Beam, column, and padstone specifications
  • Support drawings for Building Control approval


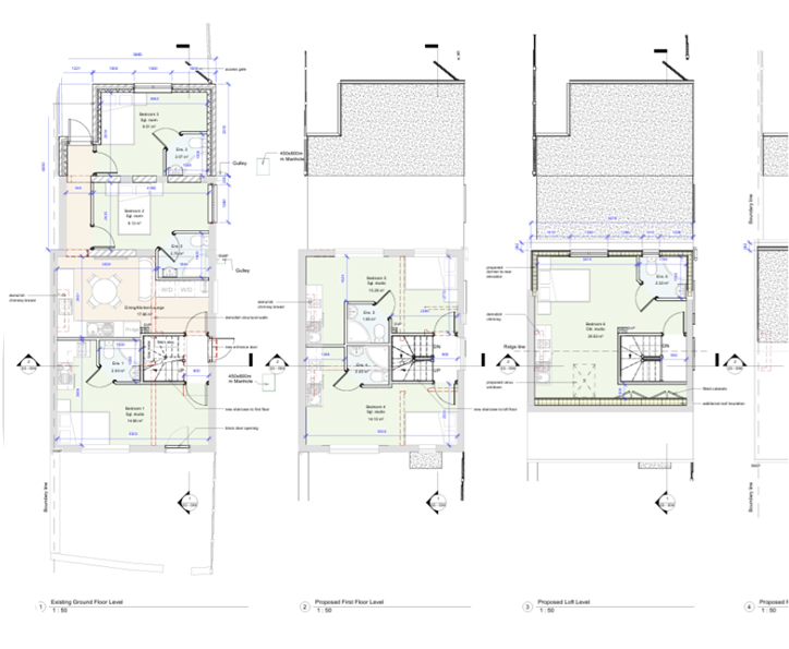
What We Do Recent Residential Extension

One of our recent successes involved a complex multi storey extension. We were brought in to assess and design structural interventions that aligned with the homeowner’s goal to extend vertically while maintaining balance and integrity of the existing building.



The project involved:

  • Ground floor reconfiguration with reinforced steel beam supports
  • First-floor and loft layout additions supported by load transfer analysis
  • Roof-level changes including new ridge beams and gable support

Our engineering ensured all additions were safe, achievable, and ready for Building Control approval.



Benefits of Working With Us

From the outset, we aim to reduce your stress while providing structural clarity. With us, you get:

  • Reports and calculations ready for planning and Building Control
  • Value-engineered solutions that minimize unnecessary steelwork
  • On-site advice and design tweaks that speed up construction
  • Confidence in safety, compliance, and long-term performance of the structure
  • Greater design flexibility and optimization of internal layouts

Your extension becomes more than added square footage it becomes a lasting improvement backed by professional expertise.

Let’s Get Started

If you're planning a home extension and want expert input from day one, contact PS Structural Ltd. We’ll help you get it right from the foundations to the roof.

our Google Reviews