• Phone : +44-7848851058
  • p.shah@psstructuralltd.co.uk

Residential

Structural Modifications & Refurbishment HMO

At PS Structural Ltd, we provide expert structural engineering services for property modifications and HMO (Houses in Multiple Occupation) refurbishments. Whether you're converting a single-family home into an HMO or undertaking a full structural reconfiguration, our qualified engineers ensure every alteration is safe, compliant, and efficient.

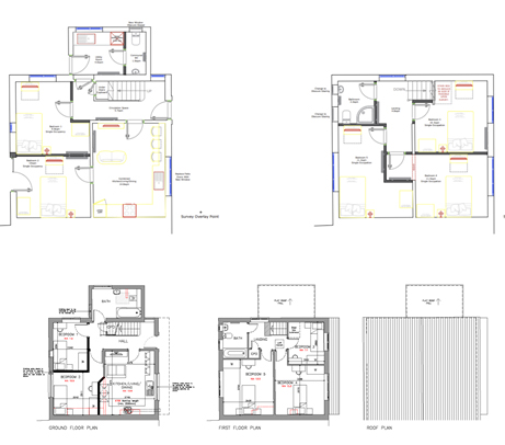
These projects are often more complex than standard residential work, requiring careful planning, regulatory compliance, and cost-effective design. We have recently completed numerous HMO projects, including loft conversions and rear extensions, helping property owners unlock more space, increase rental income, and add long term value to their investments.



Our Structural Engineering Services for HMOs

Our team provides a complete range of structural engineering solutions to support HMO conversions and property refurbishments, including:

  • Load-bearing wall removal and full structural reconfigurations
  • RSJ (steel beam) design and floor strengthening for open spaces
  • Structural audits and upgrades to ensure full HMO compliance
  • Coordination with Building Control for regulatory approval


Thinking about extending your property or adding extra living space with a loft conversion?

Our team delivers expert engineering to make your project structurally secure, regulation ready, and built for longevity. From foundation and beam design to roof-load assessments and wall alterations, we ensure your new addition integrates seamlessly with the existing building ready for approval and dependable for years to come.


Ground-floor extension under construction

Completed loft conversion and rear extension for HMO


Our Step-by-Step Process for HMO Conversions

1. Initial Consultation & Site Assessment

We start by reviewing the property layout, understanding project goals, and identifying any key structural or regulatory constraints.


2. Feasibility & Design Development

Our engineers prepare initial layouts, assess load paths, and propose efficient structural solutions that maximise space and comply with HMO requirements.


3. Structural Design & Calculations

We produce detailed drawings and calculations, including steel beam (RSJ) design, wall removals, and floor strengthening where required.


4. Coordination with Building Control

All designs are reviewed to ensure full compliance with UK Building Regulations and HMO standards, streamlining approval.


5. Ongoing Support During Construction

We remain available for site queries, revisions, or inspections to ensure the structure is built accurately and safely.



Why Choose PS Structural Ltd?

With extensive experience across HMO and refurbishment projects, PS Structural Ltd provides structural engineering solutions that combine practicality, affordability, and full regulatory compliance.

We stay up to date with the latest UK Building Regulations to ensure our designs achieve smooth planning approvals and seamless construction.

Our approach prioritises:
  • Minimising disruption throughout the refurbishment process
  • Maximising space efficiency and enhancing tenant comfort
  • Providing precise, builder-ready drawings and documentation
  • Maintaining clear communication with clients, contractors, and Building Control

From initial assessment through to final certification, our team ensures each stage of your project is efficient, compliant, and structurally robust.

Request a quote

Get in touch today for a consultation let’s build something safe, smart, and structurally sound.

our Google Reviews